Logo
ARCHITECTURE
Balmoral

Spacious, modern double storey house fit for the contemporary estate lifestyle.
Graphics
Architecture
Feb 2021
infobook
BalmoralLocation
Estate Location
Located in the heart of a brand new residential estate.

Corner block with two streetside views and located near a nature reserve.

Land Area: 328 square meters.
Frontage: 12.5m.
BalmoralLocation
Contemporary Facade
Balmoral’s contemporary facade integrates well with any modern estate.

Five materials (brick, glass, render, stone and tiles) are used to emphasize the front face of the house.

Situated on a corner site, there are two street facing sides, allowing for stunning views of the estate.
Graphics

4

BEDROOMS

Graphics

3

BATHROOMS

Graphics

4

LIVING AREAS

Graphics

35

SQUARES

View the full plans
Architectural plans for this house is available for viewing.

archiplans

infobook
Floor Plans

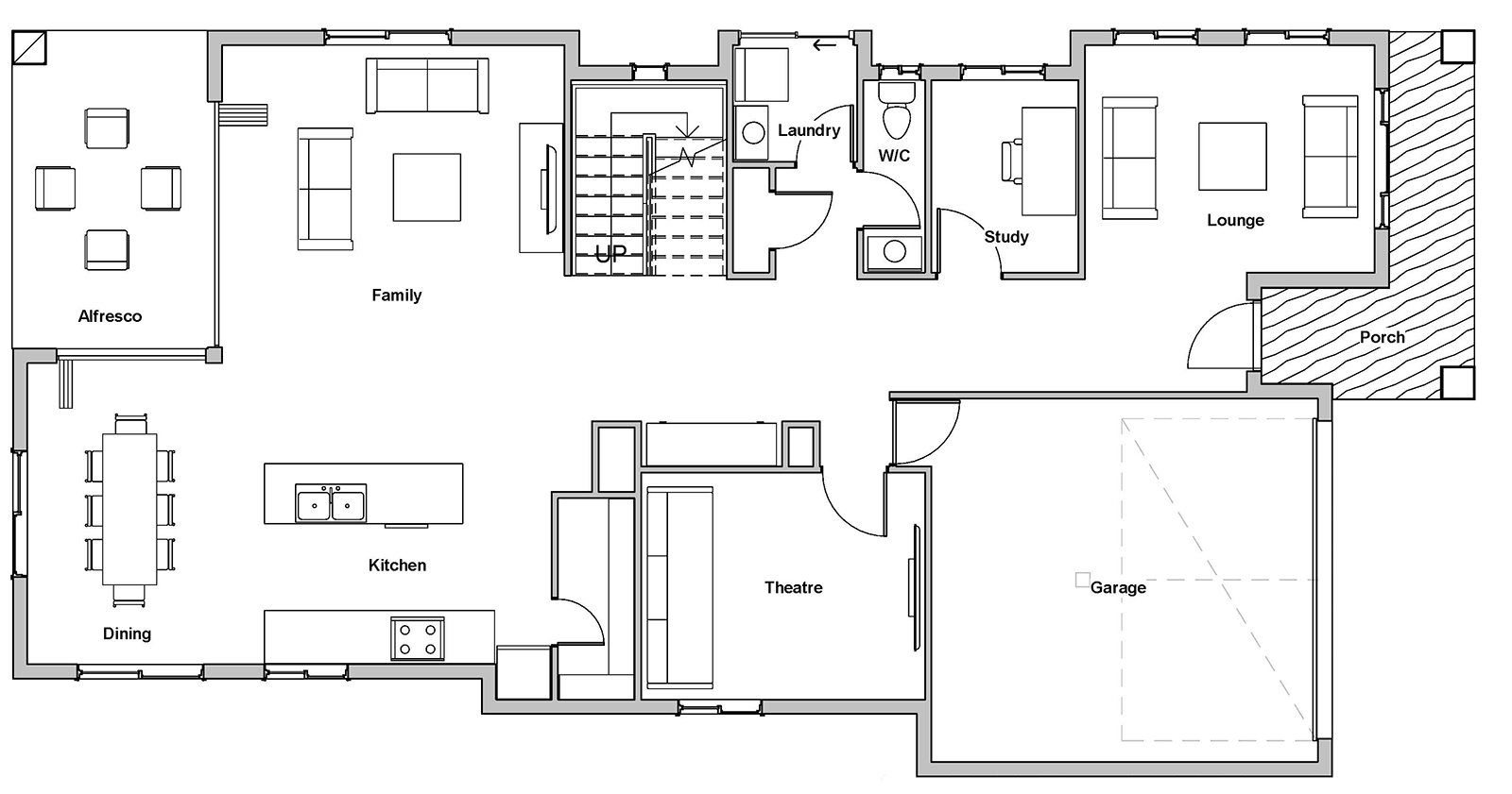
Ground Plan
Ground Floor
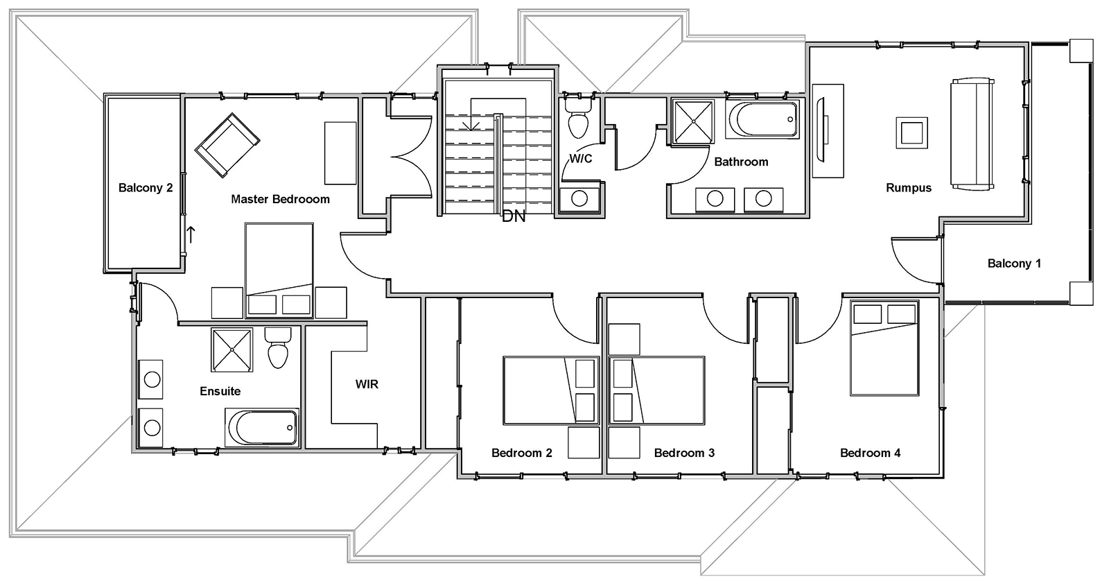
First Floor Plan
First Floor
Balmoral Interior
Balmoral hosts multiple interior and exterior living areas along with two large balconies with wonderful views of the estate.

Open space living plans make hosting parties and events a breeze.

Four large bedrooms with a study and theatre, there is no shortage for space or entertainment.
Sustainable Design
Sustainable design is an integral part of Balmoral, with the ability to achieve a 6+ star energy rating.

Domestic solar panels, double glazed windows, LED lighting and grey water tanks are all integrated within the design.
OTHER WORK
OTHER PROJECTS WHICH MAY INTEREST YOU

SuburbanHouse

ARCHITECTURE


Suburban House

A set of cozy and family friendly units in the suburban setting. Perfect as a first home or investment.
Cygnus

ARCHITECTURE


Cygnus

A green medical clinic providing holistic care to the wider community.
Vienna

ARCHITECTURE


Vienna

Bringing together nature and architecture to create a contemporary commercial complex.